フィールフォレスト

おすすめ物件情報ESTATE

※こちらの物件はご成約となりました

“無垢の木と自然素材でつくる家”の心地よさが感じられる2階建ての住まい。

シンプルモダンな外観に、自然素材の内装材をコーディネート。

玄関から一歩中へ入ると、思わず深呼吸したくなる木の香りと、あたたかみのある空間が広がります。

高性能な仕様にデザイン性も兼ね備えた、快適で安心できる住まいです。


◇ 安心・健康

構造材は貼り合わせの集成材ではなく、適材適所に無垢材を採用しています。内装材には、無垢の床材や自然素材の塗壁などを中心にセレクトしています。

◇ 快適性

木質系断熱材「セルロースファイバー」と、無垢材などの自然素材の調湿性能により、家中の湿度を最適に保ち、心地良い暮らしを実現します。

壁の中の結露も防ぐことで、構造材を健全な状態に維持し、家の寿命を延ばすことにもつながります。

◇ 省エネ

高性能サッシと、調湿効果にも優れた木質系断熱材「セルロースファイバー」により冷暖房効果を高め、夏は涼しく冬は暖かい室内環境を実現します。

◇ ZEH水準 省エネ住宅・耐震等級3

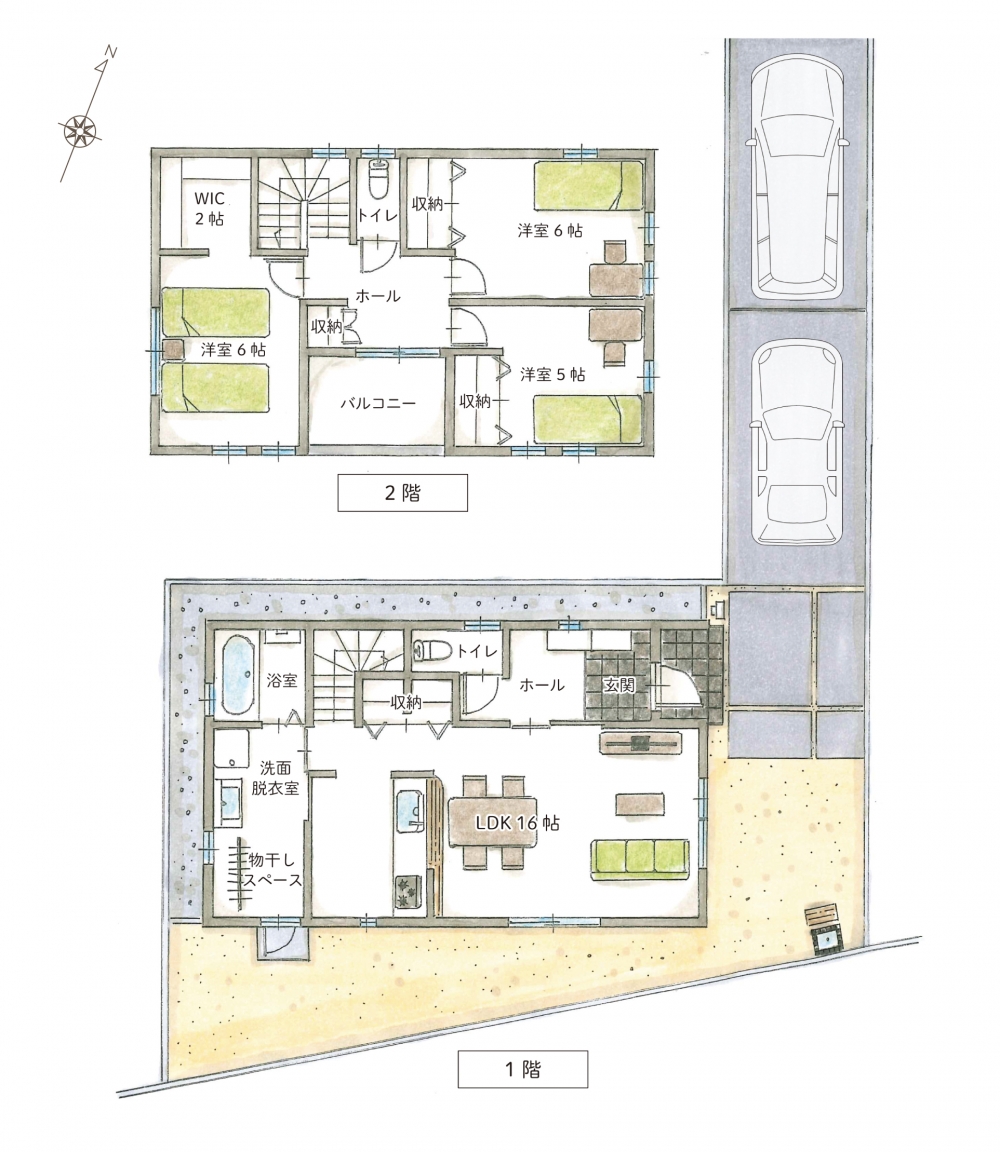
プラン

1F

キッチン

ダイニング、リビングが見渡せる対面キッチン。キッチン横には収納があり、食品の保管や調理器具の収納としても使えます。

浴室

足を伸ばして快適に入浴できる1坪サイズのバスルーム。お手入れのしやすい機能が標準装備されています。

洗面脱衣室

人目や天候、時間に左右されない室内干しスペースがあり、アイロンがけなどの家事スペースとしても使えます。

2F

洋室

6帖・6帖・5帖の3室。一室にはウォークインクローゼットを設けており、衣類だけでなく季節ものの収納にも便利です。

インナーバルコニー

室内空間と外を繋ぐインナーバルコニーで、ほどよい開放感があります。屋根があるので天候を気にせず洗濯物を干したり、テーブルや椅子を置いて寛ぐことができます。

外観・外構

片流れの屋根とグレー色のサイディング、ダークグレー色の窓枠でシンプルモダンな外観です。

南側の敷地はお庭として十分なスペースがあり、ウッドデッキを設ければアウトドアリビングとしても楽しむことができます。(デッキは別途費用) 駐車スペースは2台分あります。

外観イメージ

内観イメージ

物件概要

物件概要・面積

所在地 伊丹市大野2丁目
敷地面積 131.54㎡(39.79坪)
建築面積 49.68㎡(15.02坪)
延床面積 97.70㎡(29.55坪)
1階床面積 48.02㎡(14.52坪)
2階床面積 49.68㎡(15.02坪)
建ぺい率/容積率 60% / 200%
用途地域 第一種中高層住居専用地域
構造 木造ガルバリウム鋼板葺2階建
建築確認番号 第J25-00246号
施工 有限会社フィールフォレスト
売主 三福不動産株式会社

基本外構

駐車スペース コンクリートこて仕上げ(目地:伸縮目地棒)
門柱 アルミ角柱1本立て(外灯・インターホン取付)
ポスト 前入前出タイプ
外部給水 立水栓1か所
躯体廻り 砕石・真砂土

仕様

※各仕様は改良のため変更する場合がございます。

外装

屋根

屋根材には、高い耐久性と優れた耐食性を兼ね備えたガルバリウム鋼板を採用。 すっきりとしたデザインで、強さと美しさを実現した素材です。 軽量化により、地震の揺れも軽減してくれます。

外壁

外装材は、サイディング15㎜を採用。外壁に付着した汚れを雨水と一緒に洗い流す親水コート仕様の外壁材。シンプルな細かいスリット調のデザインです。

玄関ドア

高性能で防犯性にも優れた断熱玄関ドアを採用。 モールとのコンビネーションがポイントのシンプルな1列スリット。オーソドックスな飽きのこないデザインです。

サッシ

サッシは、アルミと樹脂の複合断熱サッシを採用。 温熱環境を快適にし、省エネ性も向上。 ペアガラス(遮熱Low-Eガラス)は、2枚ガラスの間にある空気層が熱の伝達を防ぎます。 冷房効率を高め、西日対策にも効果的です。

内装

床材

床材には全室パイン無垢材を採用。無垢床材はジメジメした梅雨時期もべたつかず、冬の朝も足元が冷えにくい素材なので、1年を通して快適にお過ごしいただけます。(洗面脱衣室、1Fトイレ、2Fトイレの床はクッションフロア)

 

壁・天井

壁と天井には天然素材の塗り壁を採用。調湿効果や消臭効果があり、お部屋全体を快適な空間にします。テクスチャーもやさしい雰囲気を演出してくれます。(収納内の仕上げは異なります。)

 

建具

やさしい風合いのパイン床材や塗り壁と馴染む、シンプルですっきりとしたデザインを採用。ホワイト色のドアは、様々なインテリアに合わせていただけます。リビングドアには、ガラス入りドアを採用しています。

 

照明

ダウンライトを中心に取り入れた基本照明を採用。 (※基本照明:玄関ポーチ・ホール・階段・水回りなど)

住宅設備

キッチン

パナソニック Vスタイル L2550

どんなインテリアにもマッチするシンプルなデザインと品質を大切にしたシステムキッチン。

■扉カラー:ビューティホワイト / ステンレスワークトップ・シンク/ 3口ガスコンロ / 食器洗い乾燥機 他

浴室

パナソニック オフローラ(1坪タイプ)

お手入れのしやすさに配慮したくつろぎの快適バスルーム。

■アクセントパネル:アイスラックグレー / スゴピカ水栓 / スゴピカフロア / 暖房換気乾燥機 ほか

洗面化粧台

パナソニック シーライン 間口900㎜

暮らしや空間にフィットするスタンダードな洗面化粧台。

■扉カラー:ホワイト(引出しタイプ) / スリムLED三面鏡 / シングルレバーシャワー水栓 ほか

トイレ

TOTO ウォシュレット一体型便器 ZJ

キレイ機能とベーシックな快適機能を搭載したスタンダードモデル。

■クリーン便座 / フチなし形状「スゴフチ」 / トルネード洗浄 ほか

【アクセサリー】棚付きペーパーホルダー / タオルレール

その他

洗面脱衣室 物干し(物干し竿別途)

川口技研 ホスクリーン スポット型

バルコニー 物干し(物干し竿別途)

川口技研 ホスクリーン 軒天用物干し

お問い合わせはこちら